明石市西明石町3丁目新築戸建

4,780万円

兵庫県明石市西明石町3丁目

山陽本線「西明石」駅徒歩12分

価格
4,780万円
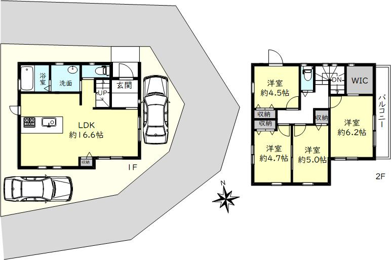
間取り/建物面積
4LDK/91.04㎡
所在地
兵庫県明石市西明石町3丁目
築年
2025年2月(新築)
駐車
有(2台)
交通

山陽本線西明石」駅 徒歩12分

明石市西明石町3丁目新築戸建の基本情報

物件名
明石市西明石町3丁目新築戸建
価格
4,780万円
建物面積
91.04㎡
土地面積
28.52坪(94.31㎡)
築年月
2025年2月(新築)
総戸数
1戸
所在地
兵庫県明石市西明石町3丁目
交通

山陽本線西明石」駅 徒歩12分

明石市西明石町3丁目新築戸建の詳細情報

設備条件
  • 建設住宅性能評価書付
  • 駐輪場
  • バイク置場あり
  • 駐車2台可
  • 耐震構造
設備(その他)
    -
駐車場/月額
有(2台)/0円
土地権利
所有権
国土法届出
不要
用途地域
第一種低層住居専用
取引態様
仲介
引渡し
相談

明石市西明石町3丁目新築戸建で募集中の物件

  1. 27.53坪 (91.04㎡)

    4,780万円(167.6万円/坪)

周辺施設

  • 和坂幼稚園の画像

    幼稚園

    和坂幼稚園

    50m(1分)

  • 明石市立和坂小学校の画像

    小学校

    明石市立和坂小学校

    70m(1分)

  • 花園3号公園の画像

    公園

    花園3号公園

    210m(3分)

  • ほしぞら保育園の画像

    保育園

    ほしぞら保育園

    360m(5分)

  • ローソン 明石野々上一丁目店の画像

    コンビニエンスストア

    ローソン 明石野々上一丁目店

    550m(7分)

  • 明石旭が丘薬局の画像

    ドラッグストア

    明石旭が丘薬局

    800m(10分)

  • なかにしこどもクリニックの画像

    小児科

    なかにしこどもクリニック

    810m(11分)

  • めぐみの郷 枝吉店の画像

    スーパー

    めぐみの郷 枝吉店

    860m(11分)

  • 志岐クリニックの画像

    総合病院

    志岐クリニック

    1130m(15分)

  • 櫨木医院の画像

    内科

    櫨木医院

    1130m(15分)

  • 明石明南郵便局の画像

    郵便局

    明石明南郵便局

    1180m(15分)

  • 井上クリニック外科胃腸科の画像

    外科

    井上クリニック外科胃腸科

    1190m(15分)

  • ケーズデンキ 西神戸店の画像

    家電製品

    ケーズデンキ 西神戸店

    1830m(23分)

  • 明石市立野々池中学校の画像

    中学校

    明石市立野々池中学校

    2050m(26分)

近隣の物件

  1. 明石市朝霧台

    2SLDK (82.06㎡)

    2,480万円

  2. 明石市太寺3丁目

    3LDK (100.27㎡)

    5,180万円

  3. 明石市大道町1丁目

    2SLDK (101.64㎡)

    4,280万円

  4. 明石市西明石町2丁目

    3LDK (86.42㎡)

    4,890万円

明石市西明石町3丁目新築戸建

お気軽にお問い合わせください

LINEからお問い合わせ 無料お問い合わせ

さくら不動産販売 オネスティ神戸株式会社

0120-930-667

9:30~19:00

(休:毎週水曜日及び第1・3火曜日)